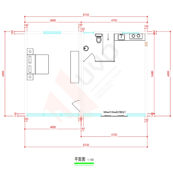
8700mm
6000mm
4000mm
52㎡
This A-frame prefab house kits with its compact dimensions of 8700mm × 6000mm × 4000mm, is precisely prefabricated in a factory within a 52㎡ space. The pointed roof design not only gives the building a highly distinctive avant-garde aesthetic but also optimizes the space's lighting and ventilation. With careful spatial planning, it can comfortably accommodate diverse functional areas such as living, relaxation, and dining/kitchen spaces. Typically used in settings such as granny pods, hotels, and vacation rentals.
| Item | Specification |
| Product Name | A-Frame Prefab House |
| Length | 8700 mm |
| Width | 6000 mm |
| Height | 4000 mm |
| Floor Area | 52 ㎡ |
| Main Frame | 2.3mm thick steel structure (columns, side columns, beams, top beams) |
| Bottom Support | 1.2mm thick 80*80 square steel tube purlin |
| Roof Insulation | 12kg single‑film foam board |
| Wall Insulation | 75mm double‑film double‑sealed rock wool board |
| Base Flooring | 18mm thick magnesium oxide cement flooring |
| Interior Trim | 0.6mm off‑white inner bevelled corner |
| Standard Accessories | Corner fittings, hardware, baking paint, neutral glass glue |
| Optional Configurations | Glass curtain wall, SPC flooring, electrical system, bamboo fiber wall panels & ceiling |

Utilizing a classic triangular load-bearing structure, it effectively disperses wind pressure, significantly improving overall stability. Combined with a 2.3mm thick high-strength galvanized steel structural frame, the entire house possesses excellent resistance to deformation and impact, easily withstanding strong winds of level 11–12 (approximately 103–133 km/h). Compared to traditional modular houses, this structure performs more reliably in coastal areas, typhoon zones, and high-wind environments, ensuring long-term safety and durability.

The triangular roof design creates a natural drainage system, allowing rainwater and snow to slide off quickly, achieving a true "zero water accumulation" effect. This structure fundamentally avoids the leakage problems common in traditional flat or low-sloping roofs, keeping the interior dry even in heavy rain or extreme weather conditions, significantly reducing later maintenance costs and improving overall living comfort.

Eco-friendly A-frame kits Utilizing a highly efficient modular assembly design, on-site installation is quick and orderly, eliminating the need for complex traditional steel structure construction methods. Precise module alignment results in a short construction period and low labor costs, truly achieving "installation upon arrival and rapid delivery," providing greater efficiency and certainty for project implementation.

UVO employs a 75-100mm rock wool sandwich insulation layer, providing excellent thermal insulation, sound insulation, and fire resistance. It maintains a stable indoor temperature in both high and low temperature environments, reducing energy consumption. This configuration not only enhances the living experience but also makes the product suitable for long-term use in various climate zones.
The minimum order quantity (MOQ) is 1 unit, making it ideal for personal use, backyard cabins, and small commercial projects.
The A-Frame structure is carefully engineered for superior water management. Key joints are tightly sealed to prevent leaks, while the steep dual-slope roof design ensures highly efficient rainwater runoff, eliminating pooling and long-term moisture damage.
Yes. The walls and roof use high-density glass wool or PU sandwich panels as core materials, effectively blocking external heat transfer, maintaining a stable indoor temperature, and reducing energy consumption for heating and cooling year-round.
Standard production and delivery take 30–40 days after order confirmation and deposit.
Permit requirements depend on local building codes and zoning regulations. As a permanent-style modular home, it is not classified as a temporary structure, so we recommend checking with local authorities for specific approval processes.
The house is delivered as a prefabricated modular unit or flat-pack components, compatible with standard trucks or containers for easy shipping to both urban and remote locations. On-site assembly is straightforward with basic tools, no heavy construction equipment required.
Assembling our a-frame home kits takes approximately 3-4 hours to complete all the frames and basic internal components.
Depending on local soil conditions and usage, options include concrete slab foundations, screw pile foundations, or pier foundations. Our team can provide tailored foundation recommendations based on your site.
The main structure has a service life of 20–30 years with proper maintenance. Regular checks and replacement of wearing parts (such as seals, roofing materials, and fixtures) will extend its long-term durability.
Select your desired unit with any additional features & delivery. Receive your final quote so you can arrange finances.
Carry out your due diligence, confirm you are satisfied & ready to proceed. We will then jump on a quick call to confirm.
Once we have received payment we will begin your build. Depending on our capacity this may take up to 3 months.
Depending on your delivery method, we will either deliver your Expander to you or you can pick it up from our Christchurch yard.
Feel free to fill out our contact form below and our support team will get back to you within 24 hours.
We use cookies to collect information about how you use this site. We use this information to make the website work as well as possible and improve our services.more details